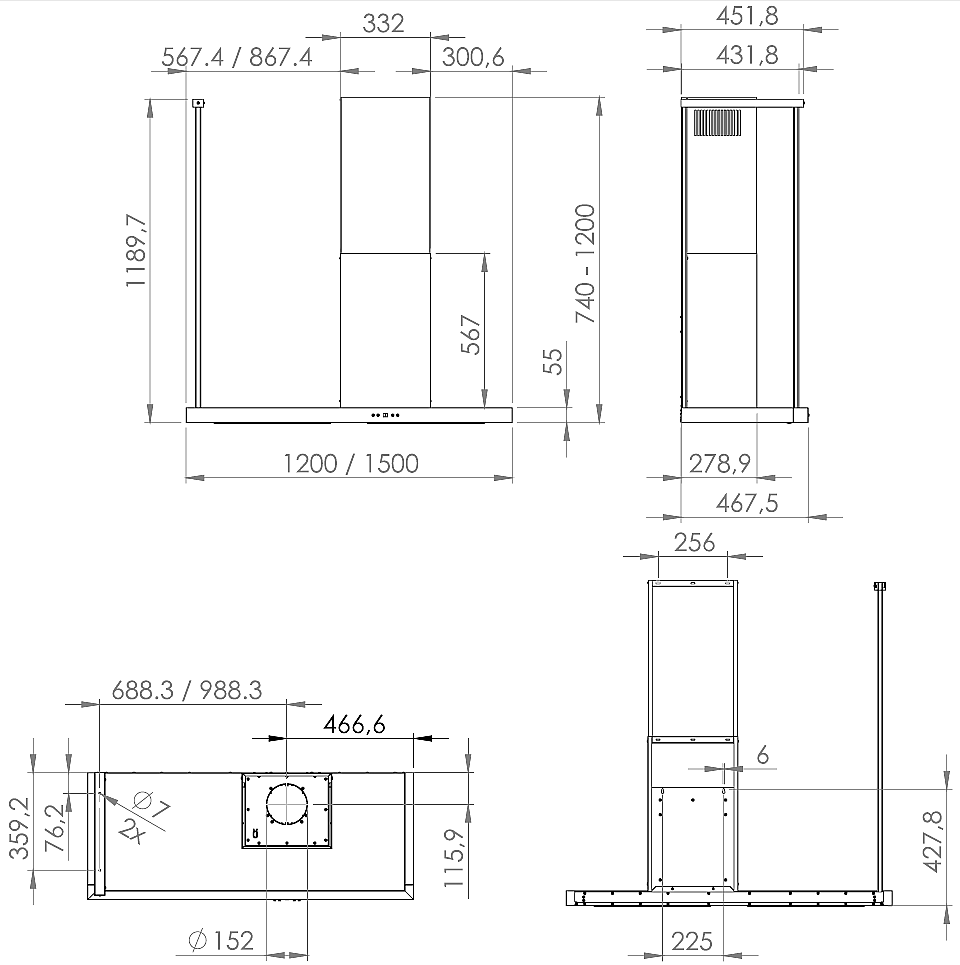
Komínové digestoře Metropolis OR Kashmir

https://nortberg.cz/kominova-digestor-metropolis-or-kashmir.html