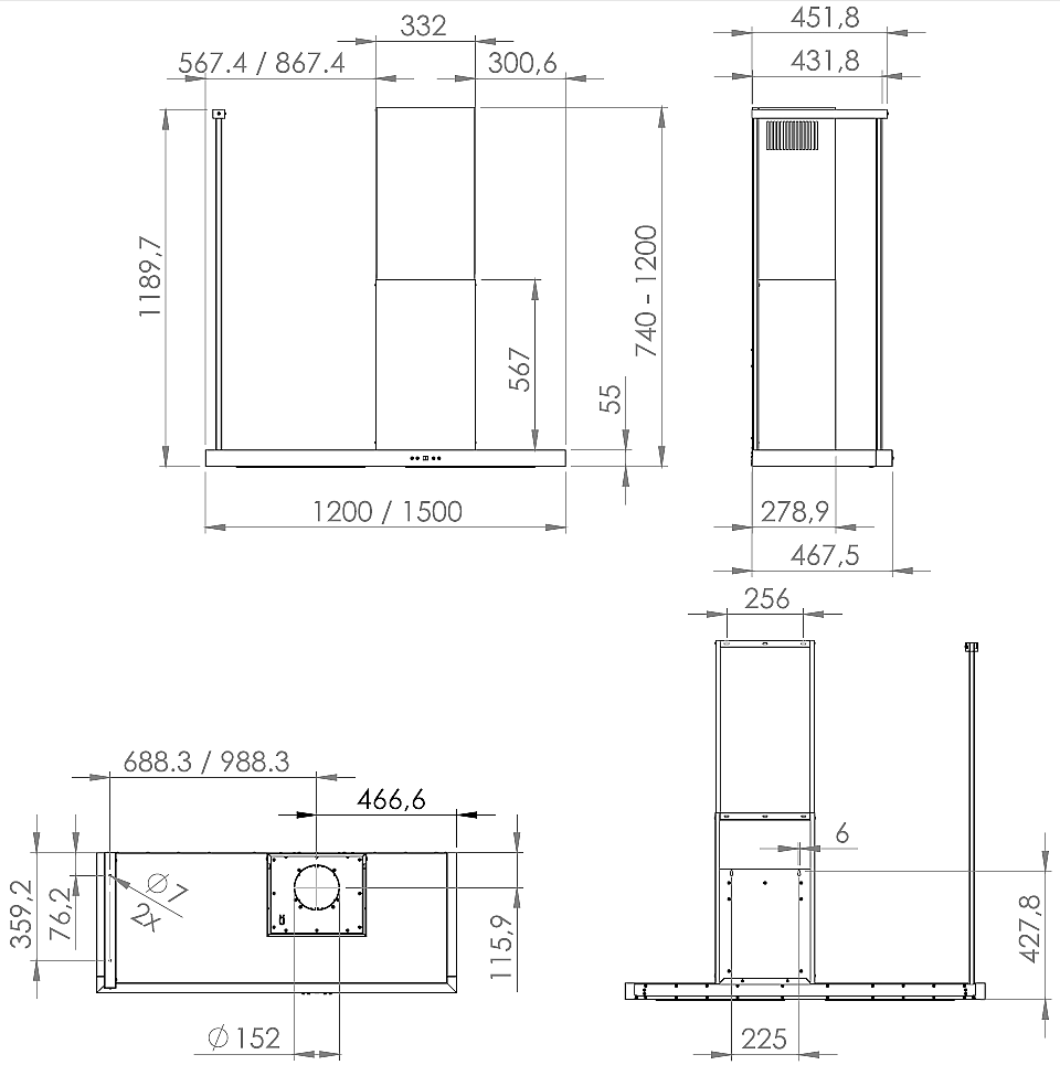
Komínové digestoře Metropolis OR White Matt

https://nortberg.cz/kominova-digestor-metropolis-or-white-matt.html