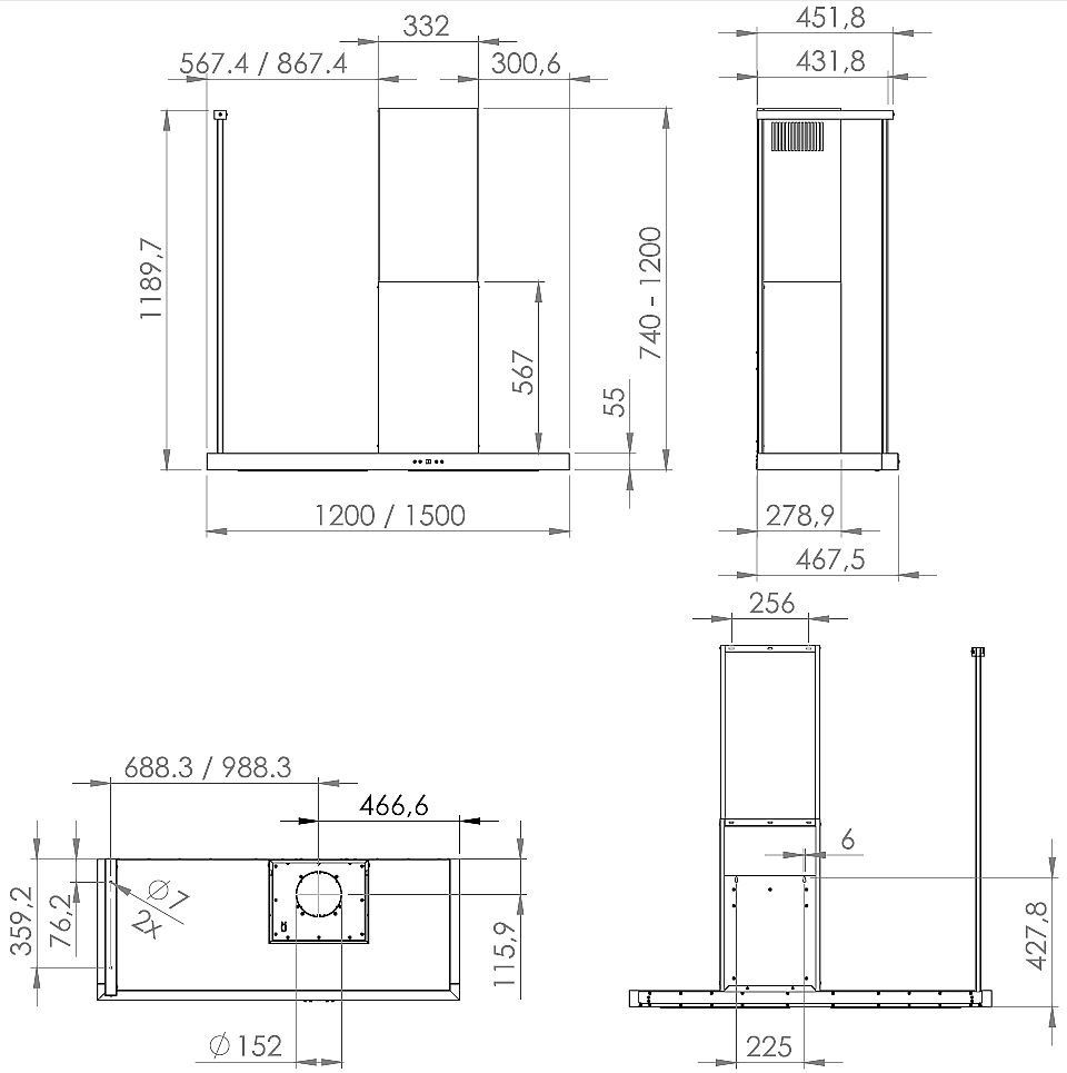
Komínové digestoře Metropolis OR Black Matt

https://nortberg.cz/kominova-digestor-metropolis-or-black-matt.html